Сдам в аренду офис 29 м.кв.

на карте
Просмотров 0
14 485 руб. / мес
на 41% дешевле похожих объектов ?
Иркутск , Баррикад улица, д.51/3
Арт-завод Доренберг
Показать телефон
назначения
Данные актуальны на 22.04.2026
Пожаловаться на объявление
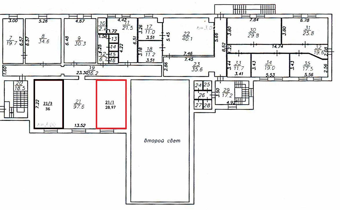
ДОРЕНБЕРГ ОБНОВЛЯЕТСЯ! Присоединяйтесь к новому Выставочному центру товаров и услуг для дизайна интерьера, ремонта и строительства! Сдается Идеальное место для торгового офиса, шоу-рума, магазина, выставки товаров на Арт-заводе Доренберг Ставка 500р./кв.м. с фиксацией на год подойдет для тех, кто хочет сделать свой шоу-рум исключительно по собственному сценарию. Возможность сделать каждый элемент шоу-рума выставочным стендом ваших образцов. Характеристики: - Полезная площадью помещения 28,97 кв.м - Заинтересованные соседи-единомышленники - Доступ в помещение 24/7 - Частная охраняемая территория - Активное строительство жилых домой поблизости Неочевидные преимущества: Посетители: 23.000 - 29.000 человек (в месяц); Средний дневной трафик: 900 человек Большинство посетителей - покупатели смежных товаров (магазины Русклимат, ДНС, Custom kitchens, AElight, ТехАспект, WOODWORKING, ТурунгаСиб, Confirbox) Ежедневно на улице Баррикад проезжает более 16,5 тысяч автомобилей Вам будут доступны рекламные возможности на территории Арт-завода (баннеры, аудиореклама, листовки, промо-акции, коллаборации с другими резидентами) Управляющая компания на Арт-заводе Доренберг станет вашим партнером, мы заинтересованы в долгосрочном перспективном сотрудничестве и выстраиваем честные доверительные отношения СОБСТВЕННИК, БЕЗ КОМИССИИ В условиях глобальной застройки района — перспективное расположение Также у нас на территории Арт-Завода «Доренберг» есть доступные помещения с другой площадью, звоните, расскажем подробнее Немного о нас: Арт-завод «Доренберг» — место для тех, кто горит идеями и желанием развивать свои проекты в атмосфере сотрудничества и взаимной поддержки Расположен в 5-х минутах от центра города (скв.Кирова) С возможностью работать и отдыхать (бары, кофейни) на территории У нас уютная дружественная атмосфера Есть свой чат резидентов для общения и коллабораций Мы с радостью разместим вашу компанию на нашем сайте и в социальных сетях Звоните! С радостью ответим на любые вопросы. Оперативно организуем просмотр Будем рады видеть вас своими резидентами!

Дополнительная информация

Тип здания Торговый центр Класс БЦ - Этаж 2 Этажность 2 Количество комнат 1 Вход - Ремонт Без ремонта
Интернет - Кондиционер - Вентиляция - Пожарная сигнализация - Пропускная система - Охраняемая парковка -
Объекты, находящиеся поблизости
Столовые, кафе
Кофе сервис 395м
Автосервис
Aqua Robot 42м
Крайснефть 49м
Парковки
ГК №37 691м
ГК №54 707м
Динамика изменения цен на рынке недвижимости ?

По городу Иркутск, в категории Офисная недвижимость » Офисы
За последние полгода средняя сумма аренды за кв.м. выросла на 8 руб. Колебание цен происходило от 835 руб. до 851 руб. Тендов к значительному изменению цены в последнем месяце не наблюдается.
Похожие объявления
Обновлено
22.04.2026
Фотографии
7
Объявление 737476
Иркутск, Баррикад улица, д.стр51/4
34 860
руб. / мес Аренда
33.2 м2
Вход в личный кабинет